Bitte warten...

Produkte / Keramische Heizelemente / Flachheizer

Flachheizer

Flachheizer

Allgemeine Beschreibung:

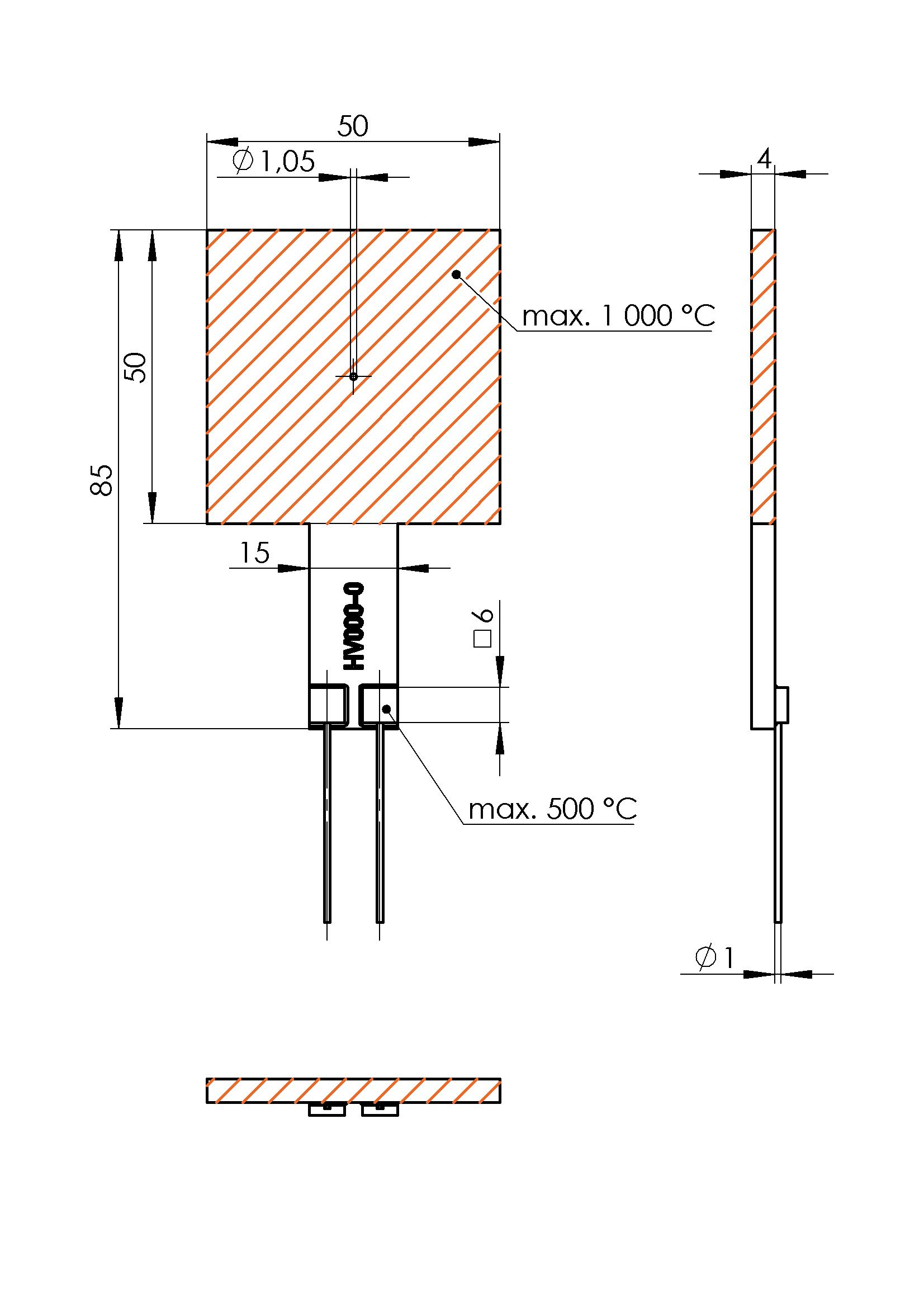
Die Maximaltemperatur von 1 000 °C und das günstige Abmaß der beheizten Zone von 50 mm x 50 mm erlauben es beim Typ HV, das Heizelement für ganz verschiedene Anwendungen zu verwenden. So lassen sich etwa durch Verwendung mehrerer Heizelemente des Typs HV mit geeignet angeordneter "kalter Zone" quader- oder würfelförmige Körper bis auf 1 000 °C erwärmen.


Grundwerte:

Parameter Wert
Abmaße 85 x 50(15) x 4,0 mm
Beheizter Bereich 50 x 50 x 4,0 mm
Tmax 1 000 °C

Details:

mit Sensorbohrung Ø1,0 mm

Beschreibung

Das Heizelement besitzt eine Sackbohrung, in die ein Temperatursensor mit Ø1,0 mm z. B. ein Mantelthermoelement hineingesteckt werden kann.
* Die tatsächliche Leistung ist vom Widerstand, der Temperatur und der Spannung abhängig.

Parameter Wert
Artikelnr. FLE 100 389
Widerstand @ 20 °C 52 Ω ±25 %
Nennspannung 230 V
Nennleistung @ 20 °C 1 017,3 W*