Produkte / Keramische Heizelemente / Strahlungsheizer
Heizelemente aus Siliziumnitrid eignen sich sehr gut als Strahlungsheizer. Das für die Heizelemente verwendete, fast schwarze Siliziumnitrid ist ein langwelliger Infrarotstrahler mit einem Maximum der Strahlungsemission (ε > 0,8) zwischen 8 und 11 µm bei 1 000 °C. So lassen sich verschiedenste Materialen effektiv durch Strahlung erwärmen: Bleche, die für nachfolgende Umformprozesse selektiv erwärmt oder auf Temperatur gehalten werden sollen ebenso wie Kunststoffe, deren Schweißkanten für einen folgenden Siegelprozess angeschmolzen werden sollen. Auch können Kunststoffe gezielt "verklebt" oder scharfe Kanten durch Strahlungswärme verrundet oder thermisch entgratet werden.
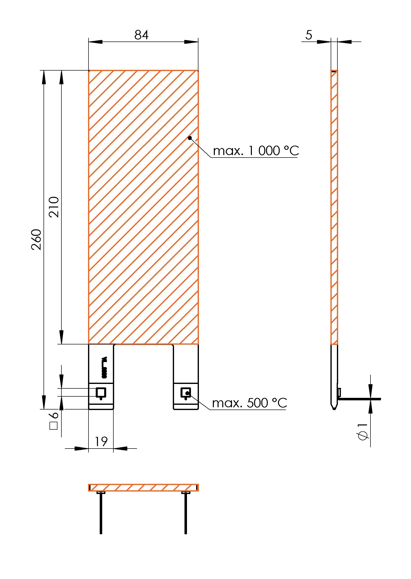
| Parameter | Wert |
|---|---|
| Abmaße | 260 x 84 x 5,0 mm |
| Beheizter Bereich | 210 x 84 x 5,0 mm |
| Tmax | 1 000 °C |
- Oberfläche sinterroh
* Die tatsächliche Leistung ist vom Widerstand, der Temperatur und der Spannung abhängig.
| Parameter | Wert |
|---|---|
| Artikelnr. | FLE 100 480 |
| Widerstand @ 20 °C | 40 Ω ±25 % |
| Nennspannung | 230 V |
| Nennleistung @ 20 °C | 1 322 W* |