Produkte / Keramische Heizelemente / Heizplatten
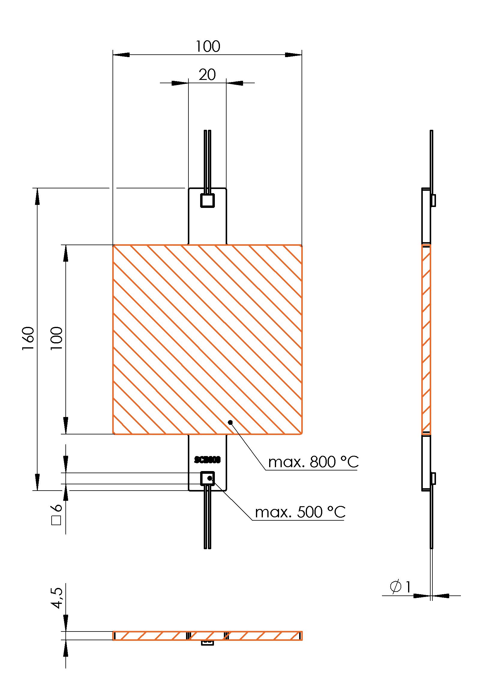
Die beheizte Zone des Heizelementes vom Typ SCB kann bis 800 °C betrieben werden. Durch die sehr geringe Wärmedehnung von Siliziumnitrid tritt auch bei dieser hohen Temperatur kaum thermischer Verzug an der Heizplatte auf - wichtig vor allem für Prozesse, bei denen Druck auf die Heizplatte oder das darauf befindliche zu erwärmende Material ausgeübt werden soll, also bei Pressenbeheizungen. Denn so ist sichergestellt, dass die Kraft gleichmäßig auf der gesamten Fläche des Heizelementes übertragen werden kann. Die nach außen geführten "Beine" für die angelöteten elektrischen Kontakte sind dafür ausgelegt, dass auch bei Maximaltemperatur am Heizelement die Lötstellen nicht über deren zulässige Maximaltemperatur von 500 °C erwärmt werden. Wichtig ist dabei allerdings, an den "Kontaktbeinen" freie Konvektion und Abstrahlung zur Kühlung zu gewährleisten.
| Parameter | Wert |
|---|---|
| Abmaße | 160 x 100 x 4,5 mm |
| Beheizter Bereich | 100 x 100 x 4,5 mm |
| Tmax | 800 °C |
* Die tatsächliche Leistung ist vom Widerstand, der Temperatur und der Spannung abhängig.
| Parameter | Wert |
|---|---|
| Artikelnr. | FLE 101 332 |
| Widerstand @ 20 °C | 26 Ω ±25 % |
| Nennspannung | 230 V |
| Nennleistung @ 20 °C | 2 034 W* |